метро Ботаническая

ЖК MiHouse

Свердловская область Сысертский район Каменка п.

 
площадь

от 75 до 160 м²

 
завершение

4 кв. 2026

 
стоимость

от 7,5 млн. руб.- 19 млн.руб.

Коттеджный поселок располагается рядом с городом Сысерть в лесном массиве около реки Каменка. Расстояние до города Екатеринбурга - 60 км.

В самом поселке есть водоём, а в Сысерти - большое водохранилище, где можно насладиться пляжным отдыхом и активными видами спорта

ТИПОВЫЕ ПЛАНИРОВКИ ОБЪЕКТОВ

2-комнатная

Площадь от 75 м2

от 7.500.000 руб

3-комнатная

Площадь от 95 м2

от 9.500.000 руб

ЖК MiHouse ЭТО

Коттеджный поселок располагается в лесном массиве около реки «Каменка». Инфраструктура: магазины, аптеки, школы, детские сады, фитнес центры, больницы. Водоем, большое водохранилище, пляжи, активные виды отдыха, базы отдыха, рядом бажовские тропы для прогулок.

К поселку подведен газ, насыпная дорога, электричество под землей, своя управляющая компания. Видеонаблюдение, КП на въезде.

Дома застройщика — это капитальные постройки из газобетонных блоков, отличающиеся доступной стоимостью, экологичностью и высоким качеством.

Застройщик проводит полный комплекс работ по благоустройству земельного участка: от озеленения до устройства дорожек и парковочных мест.
Предоставляется 5-летняя гарантия на все работы.

Стоимость на дом, указана без учета стоимости земельного участка. Размер земельных участков составляет от 10 до 15 соток.

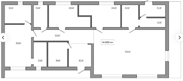
В одном из домов представлена -
Большая кухня-гостиная с высотой потолков до 4,7 м
Окно в зоне мойки на кухне
Выход на террасу с кухни
Две большие квадратные комнаты с местами под гардероб, низкими подоконниками (35 см. от пола) и большими панорамными окнами (1,8 метра в ширину)
Большой санузел
Котельная под газовое оборудование
Кладовая
Большая терраса


ОНЛАЙН КОНСУЛЬТАЦИЯ

получите больше информации о проекте
и задайте свои вопросы

НЕ НАШЛИ ПОДХОДЯЩЕЕ?

Укажите параметры недвижимости, и мы подберем варианты в течение дня бесплатно

Пожалуйста, укажите телефон
Согласен с политикой конфиденциальности
Необходимо согласие
Написать в мессенджер